43
$379,900 Sale
Listed 3 hours ago
228 Old Shediac
· 2
· 2.5
· 0
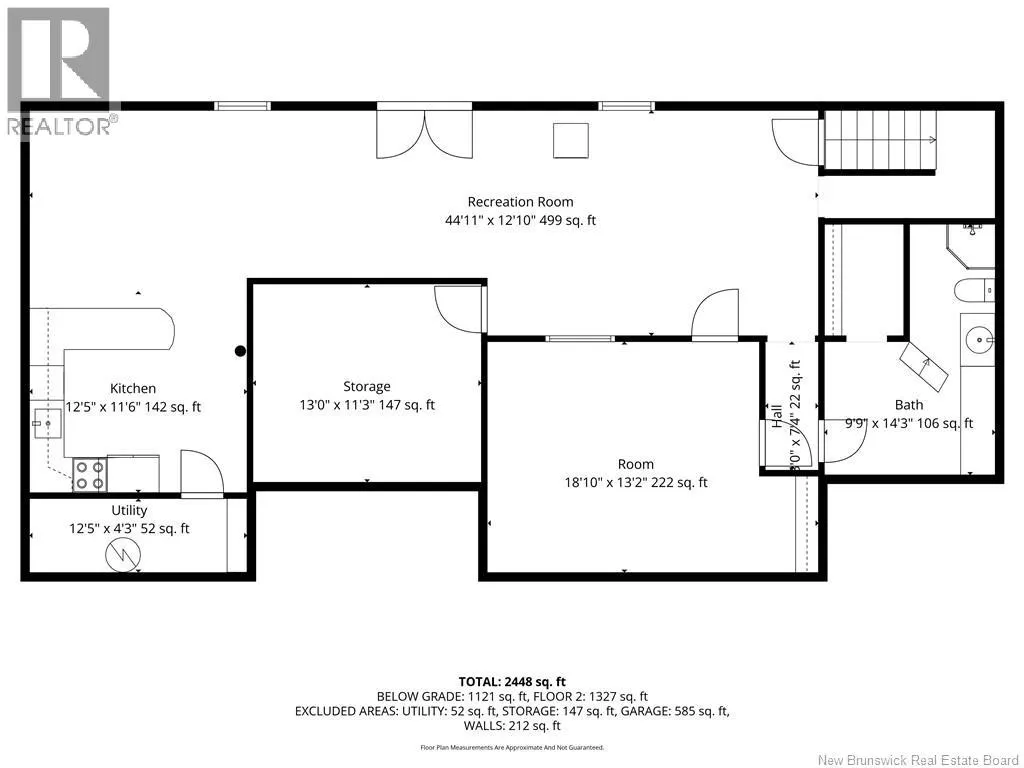
· 2448
Key Facts
Key facts for 228 Old Shediac
Property Type
House, House
Parking
Garage: Yes, 0 parking
MLS #
NB128563
Size
2448 sqft
Basement
-
Listed on
-
Lot size
-
Tax
-
Days on Market
-
Year Built
1992
Maintenance Fee
-
Description
Dont miss this opportunity! Sitting on over 2 acres of land in the beautiful village of Memramcook, this charming bungalow with a double attached garage is a true gem. Step inside to discover a spacious kitchen featuring plenty of cabinetry, a stylish backsplash, stainless steel appliances, and a co...oktop conveniently located on the island. The islands raised bar seating overlooks the inviting living room perfect for entertaining family and friends. The main level offers two generous bedrooms, a large 4-piece bathroom, and a convenient laundry area to complete the space. The fully finished walk-out basement adds even more living space, featuring a large family room, kitchen, dining area, a non-conforming bedroom, a spacious living room, and a full bathroom ideal for guests or extended family. This home is efficiently heated and cooled with a mini-split heat pump. Outside, youll love the expansive wooded backyard, paved driveway, double attached garage, and an additional detached garage for all your storage or workshop needs. Call today for more details or to schedule your private viewing! (id:10452)
Similar Properties (No results)
Room Types
3pc Bathroom
-
Dimensions 14'3'' x 9'9''
138.94 sqft
3pc Bathroom
-
Dimensions 5'7'' x 6'2''
34.43 sqft
4pc Bathroom
-
Dimensions 9'8'' x 6'1''
58.81 sqft
Listing courtesy of: EXIT Realty Associates
This REALTOR.ca listing content is owned and licensed by REALTOR® members of The Canadian Real Estate Association.